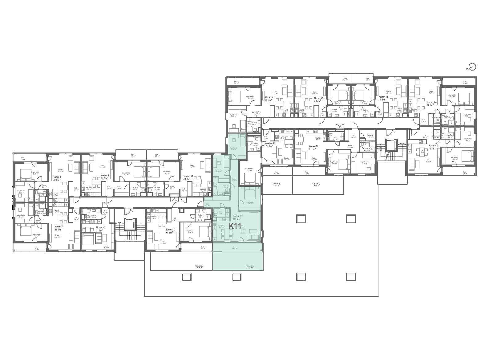
Korter 11

Kõik eluks vajalik on teie kõrval!

Korteri 11 plaan

2. korruse plaan